Refine Search

Tbd SW 20th Place, Ocala, FL 34471

$5,000,000

7 Total Photos [Click to View All]

Property Description

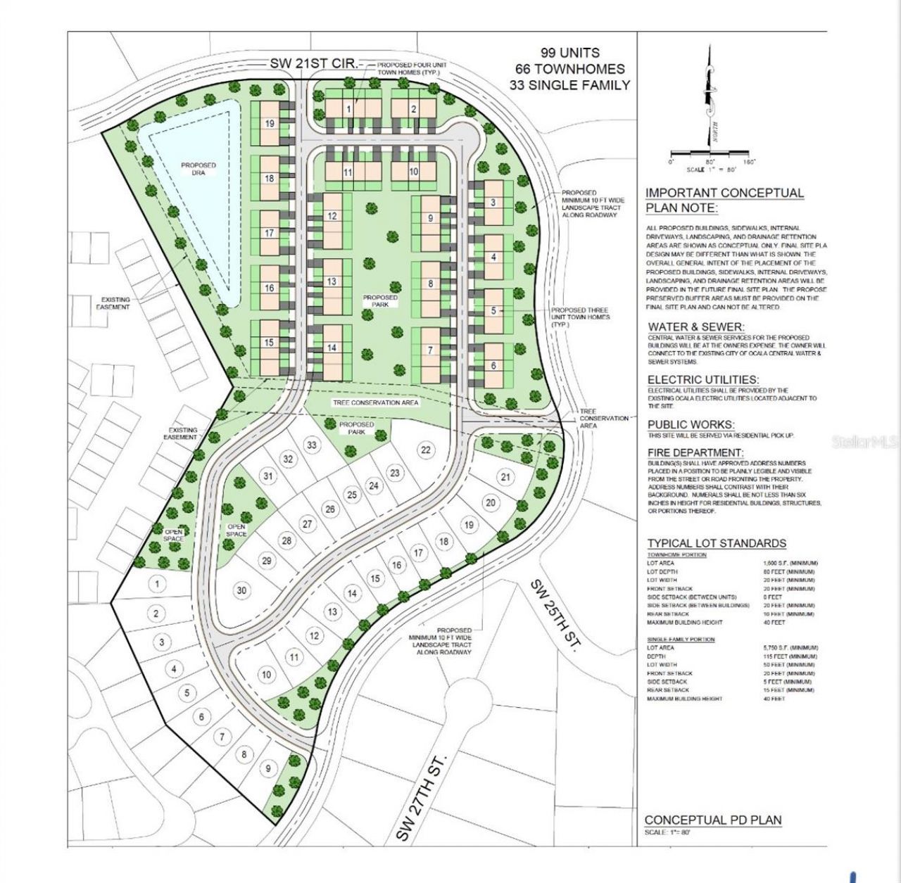
Nestled in the heart of Ocala, Willow Creek at Cala Hills presents an exceptional opportunity for residential development within one of the area's most desirable established communities. This +22-acre site is fully entitled and ready for the next phase of growth, with city water and sewer already to the property and an HOA in place. The approved site plan offers flexibility for a mix of 66 townhomes and 33 single-family homes, or alternatively, 68 single-family homes-allowing developers to tailor the product mix to meet market demand. The property benefits from existing community infrastructure, attractive surrounding neighborhoods, and convenient access to major corridors, employment centers, and retail amenities. With survey and site plan in hand, Willow Creek at Cala Hills offers a rare 'plug- and-play opportunity for builders or investors seeking a prime infill development site in the core of Ocala's rapid residential expansion zone.Ocala & Marion County Growth Highlights Top Growth Market: Ocala ranks among Florida's Top 10 Fastest-Growing Metros and has been recognized by the U.S. Census Bureau for its consistent population and job growth. Population Surge: Marion County's population exceeds 400,000 and continues to grow at over 2% annually, fueled by in-migration from across the U.S. Strong Employment Base: Anchored by healthcare, logistics, and advanced manufacturing, Ocala is home to major employers like FedEx, Chewy, Amazon, Cardinal LG, and Reilly Arts Center's expanding cultural hub. Connectivity: Centrally located within 90 minutes of Orlando,

Tbd SW 20th Place | MLS# A4670301

This land located at Tbd SW 20th Place, Ocala, FL 34471 is currently listed for sale with an asking price of $5,000,000. The property has approximately 22.00 Acres. Search Ocala real estate on www.watsonrealtycorp.com today.

Property Features

Property Type: Land - Residential
Lot Size: 22.00 Acres
Taxes: $5,230

Feature Descriptions

Community Features: Street Lights
Days on Site: 168
Directions: From I-75 take exit 350 for FL200E Silver Springs BLVD SW College Road towards OcalaAt ramp turn East , left onto FL200 SW College RoadContinue 2.5 Miles on Fl 200 past Paddock Mall and TargetTurn Right onto Sw 27th Avenue SW 20th Avenue Road. Look for Ca
Flood Zone Code: X
HOA Fee: 112/ Monthly
HOA Y/N: Yes
Home Warranty Y/N: No
Listing Terms: Cash, Conventional, Owner Financing
Lot: Buildable, Street Lights, Paved
Lot Dimensions: 22
Ownership: Fee Simple
Pets Allowed: Yes
Property Attached Y/N: No
Sewer: Public Sewer
Showing Instructions: Go Direct, ShowingTime
Special Sale Provisions: None
Utilities: BB/HS Internet Available, Cable Available, Electricity Available, Natural Gas Available, Phone Available, Public, Sewer Available, Underground Utilities, Water Available
Water: Public
Water Access Y/N: No
Zoning: PD

Local Schools

High School: West Port High School
Middle School: Liberty Middle School
Elementary School: Saddlewood Elementary School

Listed By / Shown By

Listed By

Agency Name: COMPASS FLORIDA LLC
Agency Contact: 941-279-3630

Shown By

Agency Title: Watson Realty Corp., REALTORS ®
Agency Phone: (866) 243-8193

IDX logo

Estimate Your Payment

Estimated Payment

$ 27,176.89 per month $25,282.72 Principal & Interest $435.83 Property Tax $1,458.33 Homeowner's Insurance

Change Payment Information

%
years/fixed
yearly
yearly (est.)
(Payments are an estimate and may vary by lender)

Login to My Homefinder

Pixel