984 Iron Oak Way, The Villages, FL 32163

$1,475,000

65 Total Photos [Click to View All]

Property Description

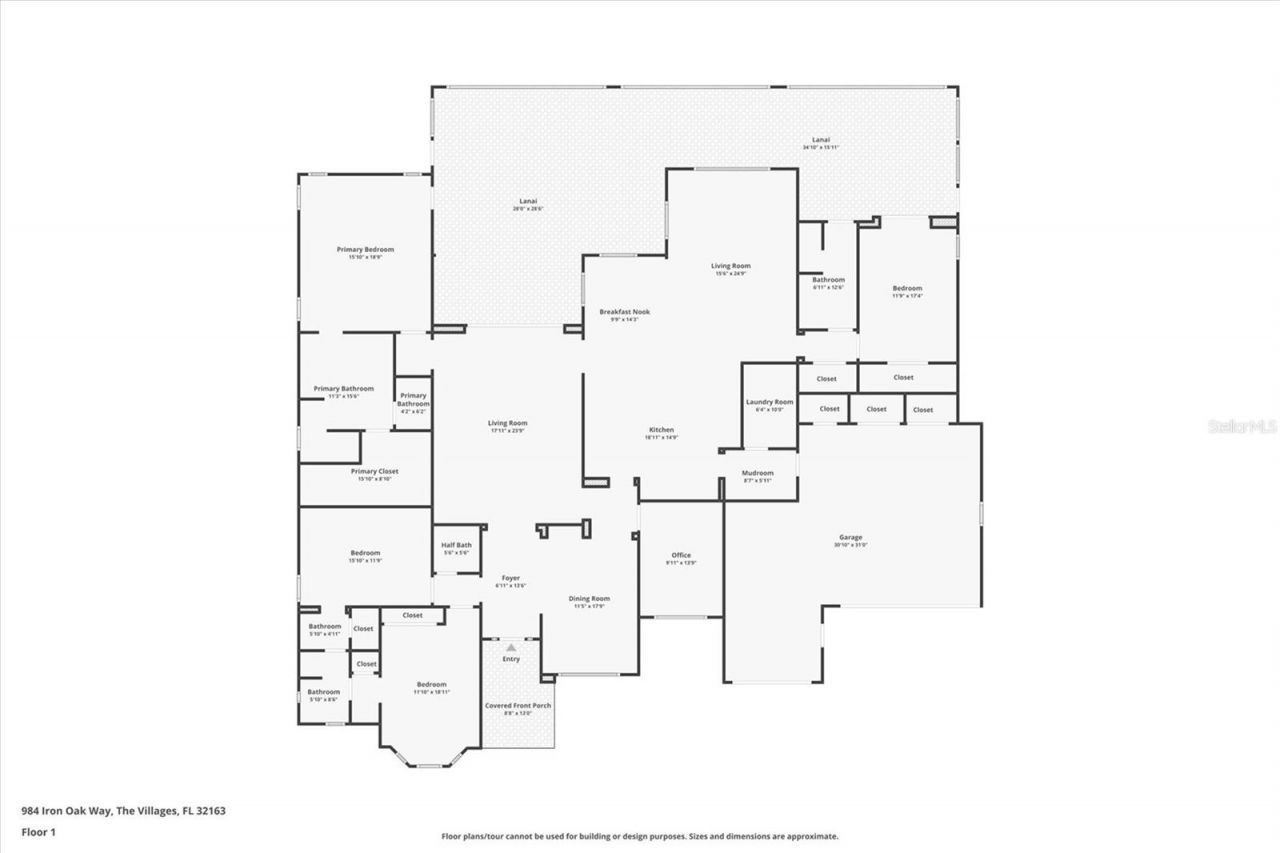
Discover luxury living in this expansive 4800 sq ft 4-bedroom plus den, 3.5-bath Kings Bay 5 premier home, ideally situated on a beautifully manicured corner lot in the Village of Osceola Hills. BOND PAID! Full 3-car garage. Inside, a grand foyer welcomes you with diagonal tile floors, triple crown molding and updated designer lighting throughout. The family room opens to your 1200 sq ft enclosed, climate-controlled lanai with electric shades, ideal for relaxing or entertaining. The gourmet kitchen boasts granite countertops, glass subway tile backsplash, stainless steel appliances, double ovens, cooktop, center island, breakfast bar, pull-out cabinetry, and a butler's pantry with desk. Solar tubes brighten the breakfast nook and living spaces. . An outdoor paver patio with fire pit adds warmth and charm to the outdoor living area. Cherry hardwood floors enhance the bedrooms. The primary suite offers a private retreat with dual vanities, Roman shower, water closet, walk-in closet, and direct lanai access. Two front bedrooms share a Jack-and-Jill bath with granite counters and split vanities. The fourth bedroom features lanai access and an adjacent third bath, perfect for guests or a home office. Additional highlights include a whole-house Generac generator, interior laundry with sink and storage, whole-home water filtration, and a gas grill connected to underground propane. Conveniently located between Brownwood Paddock Square and Lake Sumter Landing, with Burnsed Village Recreation Center just across the street and Rohan Regional Recreation Center minutes away. Close to golf, dining, shopping, and all The Villages amenities. Schedule your private showing and be sure to watch the video of this exceptional home.

984 Iron Oak Way | MLS# G5106710

This single family home located at 984 Iron Oak Way, The Villages, FL 32163 is currently listed for sale with an asking price of $1,475,000. This property was built in 2016 and has 4 bedrooms and 3 full and 1 partial baths with 4823 sq. ft. Iron Oak Way is located in the THE VILLAGES subdivision. Search THE VILLAGES real estate on www.watsonrealtycorp.com today.

Upcoming Open Houses

Open House Friday March 6th, 11:00am - 2:00pm

Property Features

Property Type: Residential - Single Family
Cooling: Central Air
Garage: 3 car attached
Heating: Central
Home Style: Contemporary
Lot Size: 0.42 Acres
Roof Type: Shingle
Stories: 1.0
Taxes: $6,991
Year Built: 2016
Square Feet: 4,823

Amenities

Built-in Features
Ceiling Fans(s)
Crown Molding
Eat-in Kitchen
Open Floorplan
Solid Wood Cabinets
Split Bedroom
Stone Counters
Tray Ceiling(s)
Walk-In Closet(s)
Window Treatments
Rain Gutters
Sidewalk
Sliding Doors

Feature Descriptions

Appliances: Built-In Oven, Cooktop, Dishwasher, Disposal, Dryer, Electric Water Heater, Microwave, Refrigerator, Washer, Water Filtration System
Association Amenities: Basketball Court, Fitness Center, Gated, Golf Course, Park, Pickleball Court(s), Pool, Racquetball, Recreation Facilities, Shuffleboard Court, Tennis Court(s), Trail(s)
Community Features: Deed Restrictions, Fitness Center, Golf Carts OK, Golf, Pool
Days on Site: 45
Directions: Take Morse Blvd south almost to SR 44. At Round About turn right onto Iron Oak way . After gate at first street turn left. House is on the right corner
Exterior: Block, Stucco
Flood Zone Code: X
Flooring: Ceramic Tile, Wood
Foundation: Slab
Garage Dimensions: 30x31
Home Warranty Y/N: No
Listing Terms: Cash, Conventional, FHA, VA Loan
Lot: Corner Lot
Lot Dimensions: 0.42
Model: Kings Bay 5
Other Equipment: Irrigation Equipment
Other Fees: $204/ Monthly
Ownership: Fee Simple
Parking: Covered, Driveway, Garage Door Opener, Golf Cart Parking
Parking Notes: Covered, Driveway, Garage Door Opener, Golf Cart Park
Patio/Porch: Front Porch, Patio
Pets Allowed: Yes
Pets Restrictions: See Deed restrictions
Property Attached Y/N: No
Property Sub-Type: Single Family Residence
Senior Community: Yes
Sewer: Public Sewer
Showing Instructions: Combination Lock Box, ShowingTime
Special Sale Provisions: None
Utilities: BB/HS Internet Available, Cable Available, Electricity Available, Electricity Connected, Phone Available, Sewer Connected, Water Connected
Vegetation: Mature Landscaping
Water: Public
Water Access Y/N: No
Windows: Shutters
Zoning: R-1

Room Sizes

Living Room: 18x23
Dining Room: 11x16
Kitchen: 18x15
Dinette: 10x14
Family Room: 16x23
Primary Bedroom: 16x19
Bedroom 2: 12x14
Bedroom 3: 16x12
Bedroom 4: 12x16
Den: 10x14
Balcony/Porch/Lanai: 63x28

Listed By / Shown By

Listed By

Agency Name: KELLER WILLIAMS CORNERSTONE RE
Agency Contact: 352-233-2200

Shown By

Agency Title: Watson Realty Corp., REALTORS ®
Agency Phone: (866) 243-8193

IDX logo

Estimate Your Payment

Estimated Payment

$ 8,125.46 per month $7,112.67 Principal & Interest $582.58 Property Tax $430.21 Homeowner's Insurance

Change Payment Information

%
years/fixed
yearly
yearly (est.)
(Payments are an estimate and may vary by lender)

Login to My Homefinder

Pixel