Refine Search

455 Riverfront Drive, Unit A201, Palm Coast, FL 32137

$839,000

69 Total Photos [Click to View All]

Property Description

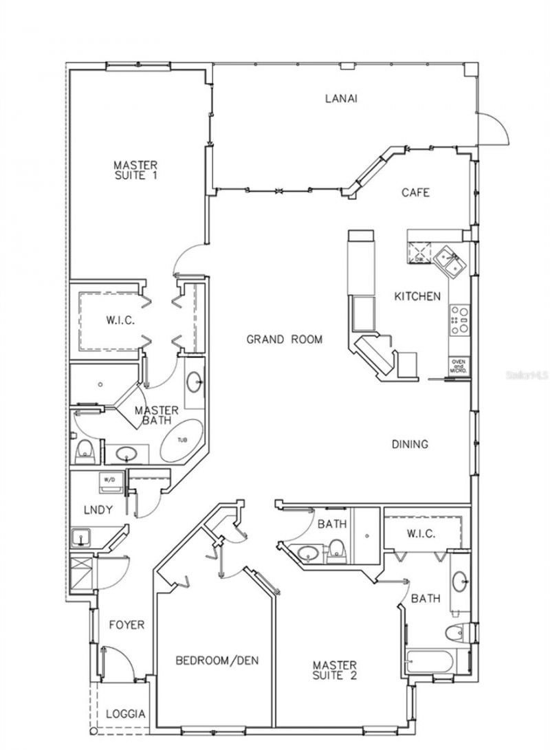
Welcome to Grand Vista at Grand Haven, an exclusive collection of just 24 brand-new luxury residences perfectly positioned along the Intracoastal Waterway and the 18th green, within the sought-after Grand Haven community in Palm Coast. This stunning 3-bedroom, 3-bath residence offers the rare convenience of a private two-car garage and has been thoughtfully designed for elevated coastal living, blending refined European style with modern Florida comfort.Step inside to 10-foot ceilings, elegant crown molding, and 7-inch baseboards, creating a light-filled, upscale atmosphere throughout. The designer kitchen is a true showpiece, featuring luxury quartz stone countertops, European cabinetry, handcrafted Italian tile, and a premium GE appliance package, complemented by Williams Sonoma lighting and brushed gold plumbing fixtures. High-grade LVT flooring flows seamlessly through the living spaces, offering both beauty and durability.The primary suite delivers spa-level sophistication with a freestanding soaking tub, Toto bath fixtures, and curated finishes designed for relaxation. A dedicated **laundry room-complete with washer, dryer, cabinetry, and sink-**adds everyday convenience, while high-impact windows provide peace of mind and energy efficiency. Enjoy effortless indoor-outdoor living from your screened-in patio, ideal for relaxing while taking in the surrounding views.Residents of Grand Vista enjoy full access to the world-class amenities of Grand Haven, a vibrant, gated community known for its active, resort-style lifestyle. Amenities include a fitness center, pool, tennis, pickleball, bocce, croquet, and basketball courts, along with access to a championship golf course. Social spaces, caf?s, and event venues create a true sense of community, all just minutes from Palm Coast's best shopping, dining, and coastal attractions.Brand new. Architecturally refined. Perfectly positioned.Grand Vista offers a rare opportunity to own new construction luxury along the Intracoastal and golf course in one of Palm Coast's most desirable communities-where lifestyle, design, and location come together seamlessly.

455 Riverfront Drive, Unit A201 | MLS# FC315019

This condo located at 455 Riverfront Drive, Unit A201, Palm Coast, FL 32137 is currently listed for sale with an asking price of $839,000. This property was built in 2024 and has 3 bedrooms and 2 full and 1 partial baths with 2167 sq. ft. Riverfront Drive, Unit A201 is located in the GRAND VISTA CONDO/GRAND HAVEN subdivision. Search GRAND VISTA CONDO/GRAND HAVEN real estate on www.watsonrealtycorp.com today.

Property Features

Property Type: Residential - Condominium
Cooling: Central Air
Garage: 2 car attached
Heating: Central, Electric
Roof Type: Shingle
Stories: 3.0
Taxes: $17,415
Year Built: 2024
Square Feet: 2,167

Amenities

Built-in Features
Ceiling Fans(s)
Crown Molding
Eat-in Kitchen
High Ceilings
Open Floorplan
Primary Bedroom Main Floor
Solid Surface Counters
Solid Wood Cabinets
Split Bedroom
Stone Counters
Thermostat
Walk-In Closet(s)
Lighting

Feature Descriptions

Appliances: Built-In Oven, Cooktop, Dishwasher, Dryer, Microwave, Refrigerator, Washer
Builder: Zander Development Group
Community Features: Clubhouse, Fitness Center, Gated Community - Guard, Golf Carts OK, Golf, Irrigation-Reclaimed Water, Playground, Pool, Restaurant, Sidewalks, Special Community Restrictions, Tennis Court(s)
Condo Fee: $696/ Monthly
Days on Site: 53
Directions: Palm Coast Pkwy to Colbert Lane. Left at Grand Haven main entrance, Waterside Pkwy. Through gate down to Riverfront Dr, take left and follow to Grand Vista Condos. Building A parallel to Intracoastal.
Exterior: Concrete, Stucco
Flood Zone Code: X
Flooring: Ceramic Tile, Luxury Vinyl
Foundation: Slab
HOA Y/N: Yes
Home Warranty Y/N: No
Listing Terms: Cash, Conventional
Lot: Landscaped, Near Golf Course
Model: Oakmont
Ownership: Fee Simple
Parking: Garage Door Opener, Ground Level, Guest
Parking Notes: Garage Door Opener, Ground Level, Guest
Patio/Porch: Covered, Porch, Rear Porch, Screened
Pets Allowed: Yes
Pets Restrictions: Confirm restrictions with association.
Pets Weight (Max): 999
Property Attached Y/N: No
Property Sub-Type: Condominium
Security: Gated Community
Sewer: Public Sewer
Showing Instructions: Appointment Only, ShowingTime
Special Sale Provisions: None
Utilities: BB/HS Internet Available, Cable Available, Electricity Connected, Sewer Connected, Water Connected
Vegetation: Trees/Landscaped
Water: Public
Water Access Y/N: No
Water View: Intracoastal Waterway
Zoning: RESI

Local Schools

High School: Matanzas High
Middle School: Imagine Schools Town Center (K-8)
Elementary School: Old Kings Elementary

Listed By / Shown By

Listed By

Agency Name: COASTAL GATEWAY REAL ESTATE GR
Agency Contact: 888-977-1588

Shown By

Agency Title: Watson Realty Corp., REALTORS ®
Agency Phone: (866) 243-8193

IDX logo

Estimate Your Payment

Estimated Payment

$ 5,741.74 per month $4,045.78 Principal & Interest $1,451.25 Property Tax $244.71 Homeowner's Insurance

Change Payment Information

%
years/fixed
yearly
yearly (est.)
(Payments are an estimate and may vary by lender)

Login to My Homefinder

Pixel